简体版| 繁体版
支持IPv6
无障碍
当前位置:首页 > 城市规划 > 项目规划公示
发文单位:贺州市自然资源局成文日期:2026年04月09日
标  题:贺州市八步区江南片区养老服务中心项目规划及建筑设计方案征求意见公示
发文字号:贺自然公示〔2026〕56号发布日期:2026年04月09日

贺州市八步区江南片区养老服务中心项目规划及建筑设计方案征求意见公示

2026-04-09 10:00     来源:贺州市自然资源局
收藏 我要收藏 公共资源调用站点 文章分享
分享 微信
头条
微博 空间 qq
【字体: 打印

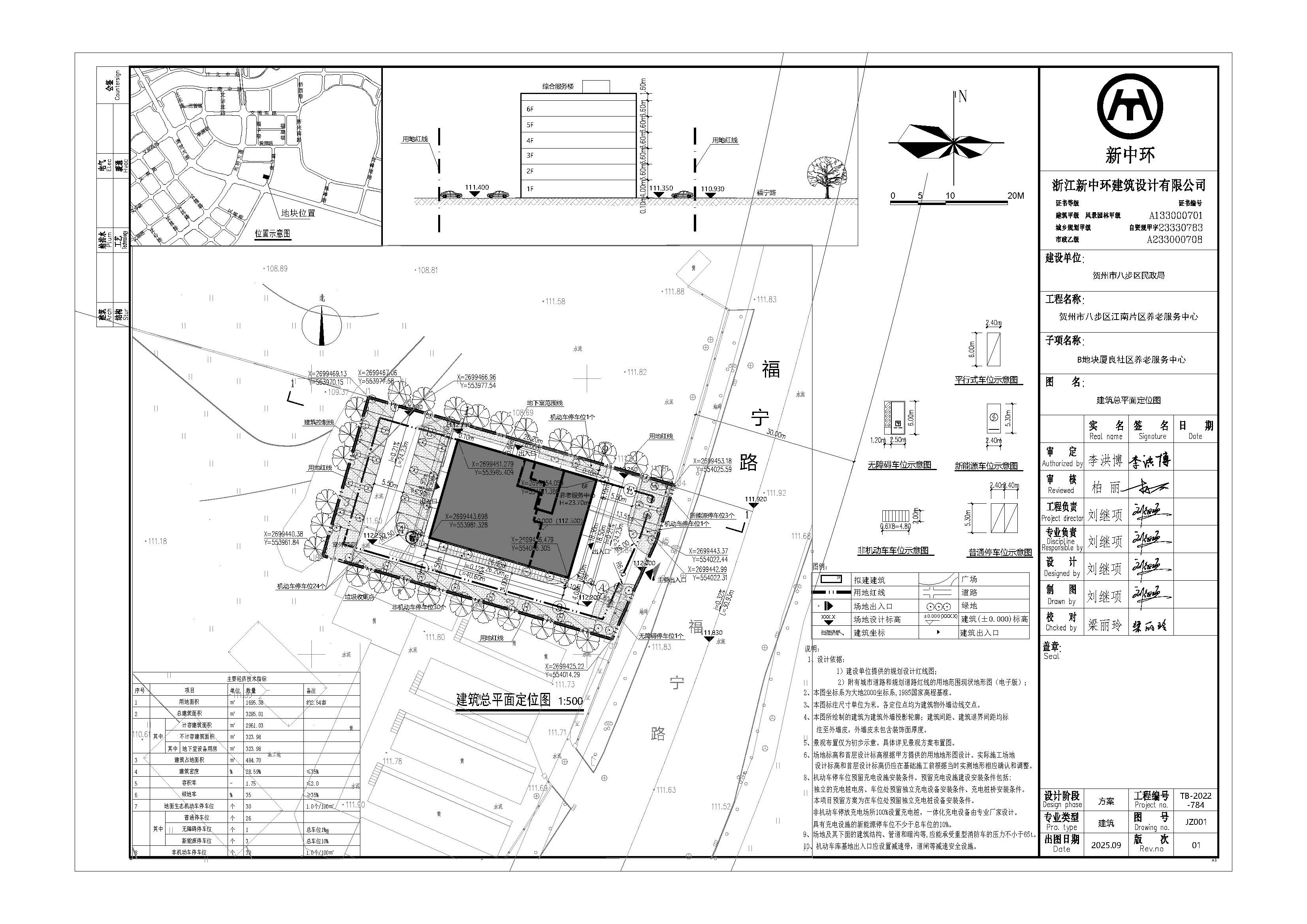
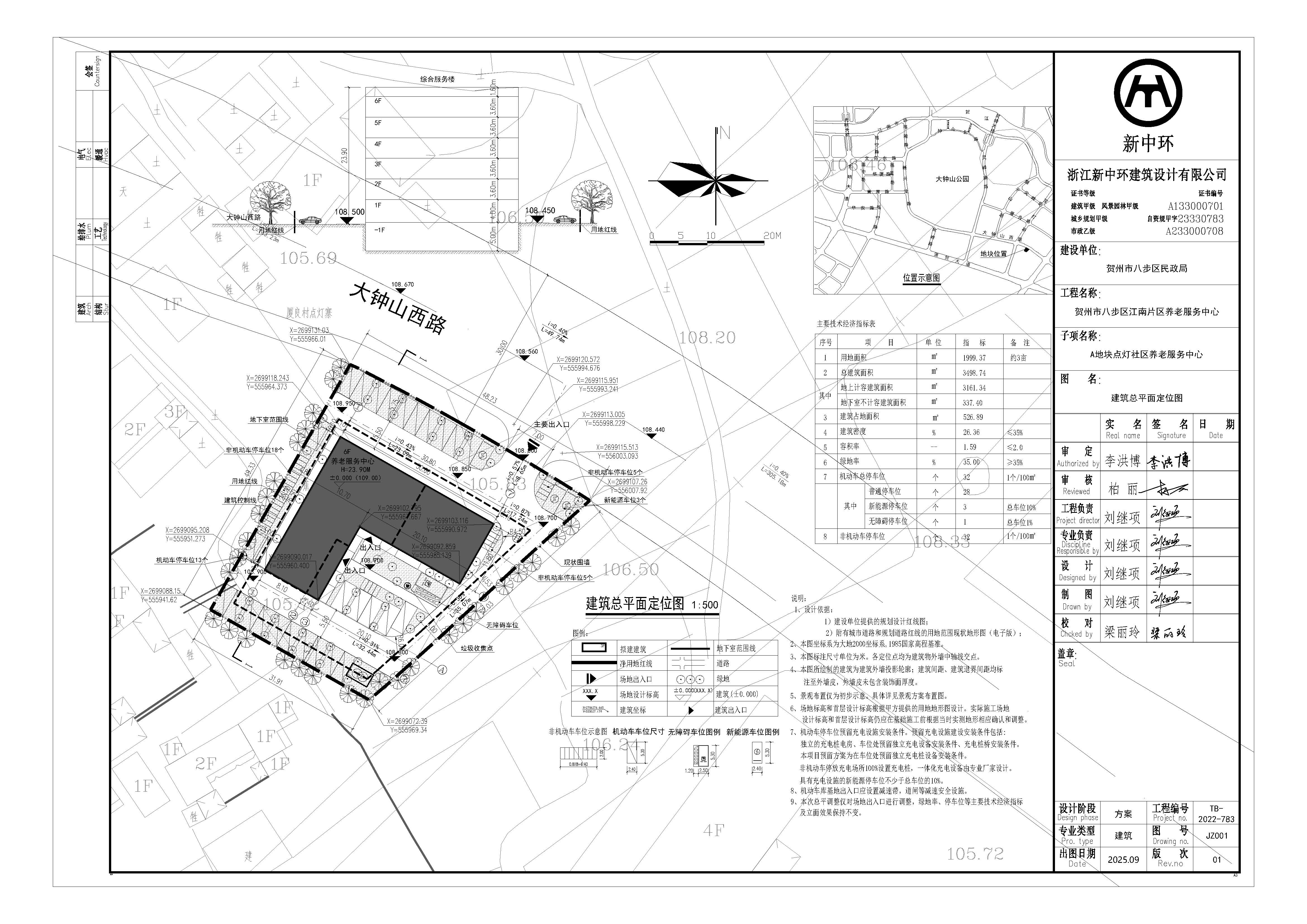
为完善养老服务规划布局,扩大养老服务设施有效供给,提高江南片区养老设施的服务能力,八步区民政局向我局提出申请批复《贺州市八步区江南片区养老服务中心项目规划及建筑设计方案》。该方案包含两个地块,其中A地块位于大钟山西路南侧,B地块位于潇贺大道与福宁路交汇处北侧。经审核,该方案各项指标均符合规划设计条件及相关规范要求,并经我局2026年第2次局务会议审议通过。根据《关于城乡规划公开公示的规定》(建规〔2013〕166号),现将该方案予以征求意见公示(从2026年4月9日至2026年4月15日;公示地址:贺州市自然资源局网站http://hz.dnr.gxzf.gov.cn/、贺州日报)。如相关利害人对该方案有异议和建议,请于公示期内将书面意见(利害关系人应当提供与公示事项有利害关系的事实和证明,反馈意见应署真实姓名和联系地址、有效联系方式)送达或发邮件到贺州市自然资源局城市建设科,地址:贺州市贺州大道403号,电子邮箱:hzcsjsk@gxj.gxhz.gov.cn,电话:5685433。如反馈意见信息不准确或不完整无法及时进一步核对相关情况的,将视为无效意见。

附件:1.区位图

      2.彩色总平面图

      3.黑白总平面图

      4.鸟瞰效果图

      5.人视效果图

贺州市自然资源局        

2026年4月9日        


关联文件: