简体版| 繁体版
支持IPv6
无障碍
当前位置:首页 > 城市规划 > 项目规划公示
发文单位:贺州市自然资源局成文日期:2026年03月27日
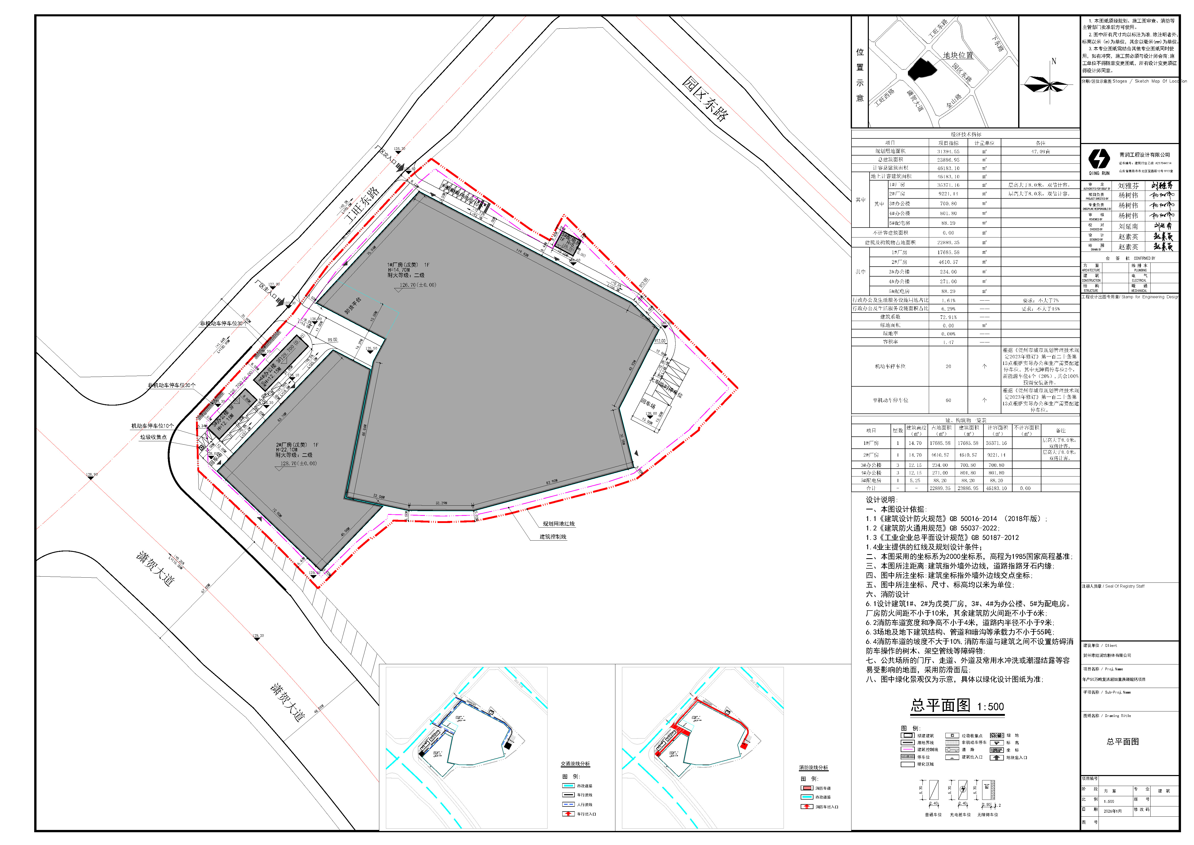
标  题:贺州市红泥坊粉体有限公司年产50万吨复活超细重质碳酸钙项目规划及建筑设计方案批前公示
发文字号:贺自然公示〔2026〕44号发布日期:2026年03月27日

贺州市红泥坊粉体有限公司年产50万吨复活超细重质碳酸钙项目规划及建筑设计方案批前公示

2026-03-27 10:40     来源:贺州市自然资源局
收藏 我要收藏 公共资源调用站点 文章分享
分享 微信
头条
微博 空间 qq
【字体: 打印

贺州市红泥坊粉体有限公司向我局申请批准贺州市红泥坊粉体有限公司年产50万吨复活超细重质碳酸钙项目规划及建筑设计方案。经审核,该方案各项指标均符合规划设计条件及相关规范要求,并经贺州市自然资源工作领导小组2026年第2次会议审议通过。根据住建部《关于城乡规划公开公示的规定》(建规〔2013〕166号),现将该方案予以批前公示(从2026年3月27日至2026年4月2日;公示地址:贺州市自然资源局网站http://hz.dnr.gxzf.gov.cn/)。如相关利害人对该方案有异议和建议,请于公示期内将书面意见(利害关系人应当提供与公示事项有利害关系的事实和证明,反馈意见应署真实姓名和联系地址、有效联系方式)送达或发邮件到贺州市自然资源局城市建设科(地址:贺州市贺州大道403号,电话:5685422,电子邮箱:hzcsjsk@gxj.gxhz.gov.cn)。如反馈意见信息不准确或不完整无法及时进一步核对相关情况的,将视为无效意见

附件:1.区位图

       2.黑白总平面图

       3.彩色总平面图

       4.实景鸟瞰图

       5.立面效果图

贺州市自然资源局        

2026年3月27日        


关联文件: