简体版| 繁体版
支持IPv6
无障碍
当前位置:首页 > 城市规划 > 项目规划公示
发文单位:贺州市自然资源局成文日期:2026年03月27日
标  题:贺州市平桂区汇龙湾康养城建设项目规划及建筑设计方案批前公示
发文字号:贺自然公示〔2026〕42号发布日期:2026年03月27日

贺州市平桂区汇龙湾康养城建设项目规划及建筑设计方案批前公示

2026-03-27 10:20     来源:贺州市自然资源局
收藏 我要收藏 公共资源调用站点 文章分享
分享 微信
头条
微博 空间 qq
【字体: 打印

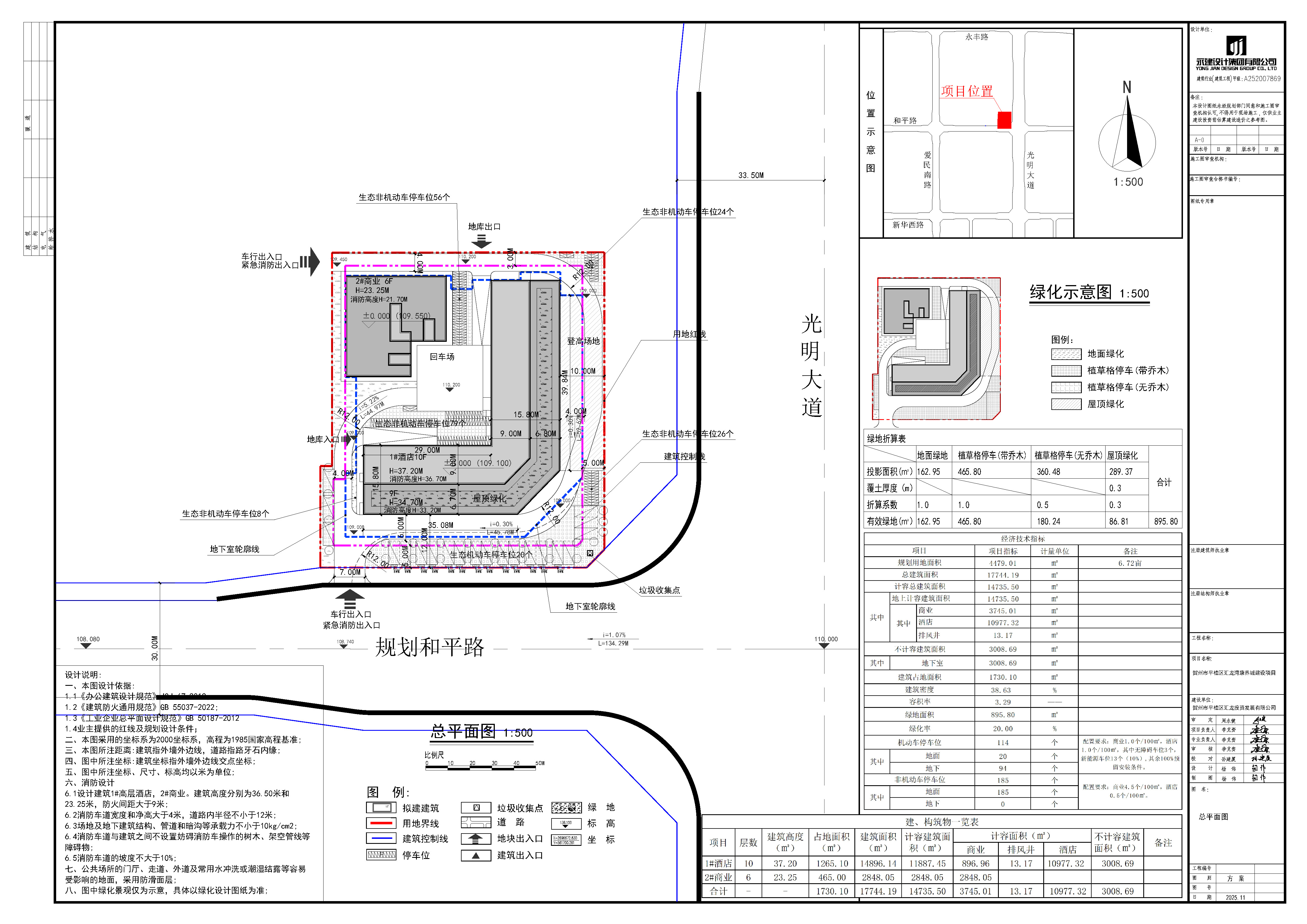
贺州市平桂区黄田镇担石村1-10共10个村民小组向我局申请批准《贺州市平桂区汇龙湾康养城建设项目规划及建筑设计方案》,该项目位于贺州市光明大道与和平路交汇处西北侧。经核,项目各项指标符合规划设计条件及相关规范要求,并经贺州市自然资源工作领导小组2026年第1次会议审议通过。根据住建部《关于城乡规划公开公示的规定》(建规〔2013〕166号),现将该方案予以批前公示(从2026年3月27日至2026年4月2日;公示地址:贺州市自然资源局网站http://hz.dnr.gxzf.gov.cn/、贺州日报)。如相关利害人对该方案有异议和建议,请于公示期内将书面意见(利害关系人应当提供与公示事项有利害关系的事实和证明,反馈意见应署真实姓名和联系地址、有效联系方式)送达或发邮件到贺州市自然资源局城市建设科,地址:贺州市贺州大道403号,电子邮箱:hzcsjsk@gxj.gxhz.gov.cn,电话:5685433。如反馈意见信息不准确或不完整无法及时进一步核对相关情况的,将视为无效意见。

附件:1.区位分析图

           2.彩色总平面图

           3.黑白总平面图

           4.实景鸟瞰图

           5.人视效果图

贺州市自然资源局        

2026年3月27日        


关联文件: