简体版| 繁体版
支持IPv6
无障碍
当前位置:首页 > 城市规划 > 项目规划公示
发文单位:贺州市自然资源局成文日期:2026年03月27日
标  题:贺州市华城商业广场项目地下室及3#建筑设计调整方案批前公示
发文字号:贺自然公示〔2026〕38号发布日期:2026年03月27日

贺州市华城商业广场项目地下室及3#建筑设计调整方案批前公示

2026-03-27 11:03     来源:贺州市自然资源局
收藏 我要收藏 公共资源调用站点 文章分享
分享 微信
头条
微博 空间 qq
【字体: 打印

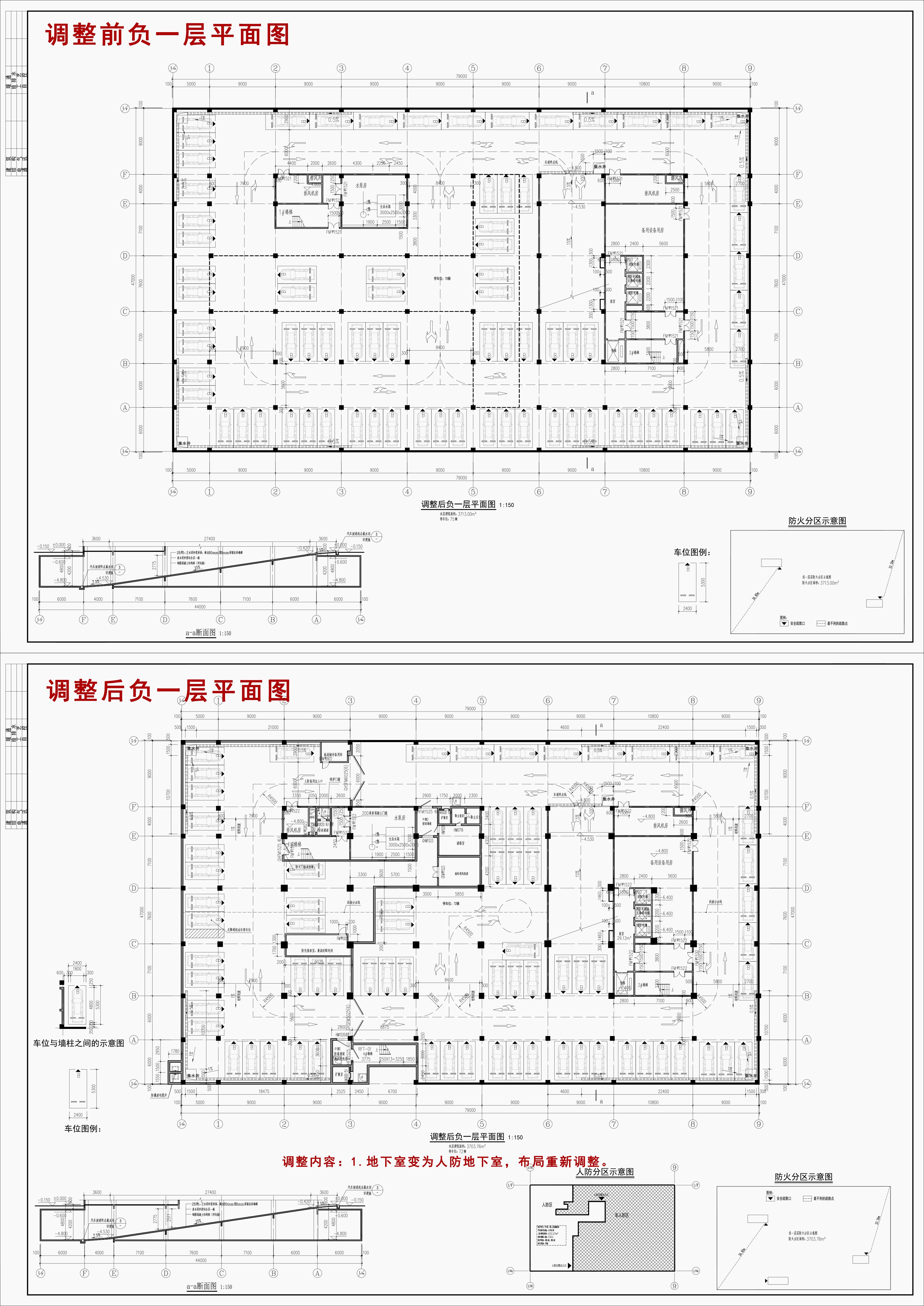
根据人防建设需求及《贺州市停车位配建指标补充规定(试行)》,贺州市华城置业投资有限责任公司申请对原批复方案的地下室、3#楼的建筑布局进行调整,即:(一)地下室增加人防设计内容,并相应调整地下室范围及地下停车位布局;(二)优化3#楼一层停车库布局、并增设一个停车库出入口、一个地下室出地面的楼梯间;(三)在保持建筑面积不变的前提下取消3#楼五层至九层酒店部分的阳台设计。经核,调整后方案满足规划设计条件及相关规范要求,并经我局2026年第2次局务会审议通过。现根据住建部《关于城乡规划公开公示的规定》(建规〔2013〕166号),现将该调整事项予以批前公示(公示期:2026年3月28日至2026年4月3日;公示地址:贺州市自然资源局网站http://hz.dnr.gxzf.gov.cn/、星光路与平安西路交汇处东南侧)。如相关利害人对该调整事项有异议和建议,请于公示期内将书面意见(利害关系人应当提供与征求意见事项有利害关系的事实和证明,反馈意见应署真实姓名和联系地址、有效联系方式)送达或发邮件到贺州市自然资源局城市建设科,地址:贺州市贺州大道403号,电话:0774—5685433,电子邮箱:hzcsjsk@gxj.gxhz.gov.cn。如反馈意见信息不准确或不完整无法及时进一步核对相关情况的,将视为无效意见。

附件:1.总平调整对比示意图

2.地下室平面对比图

3.3#楼一层平面对比图

4.3#楼五层平面对比图

5.3#楼六至八层平面对比图

6.立面对比图

贺州市自然资源局        

2026年3月27日        


关联文件: