简体版| 繁体版
支持IPv6
无障碍
当前位置:首页 > 城市规划 > 项目规划公示
发文单位:贺州市自然资源局成文日期:2026年03月02日
标  题:贺州市委党校旧址生活区2栋1单元住宅楼加装电梯工程建筑设计方案批前公示
发文字号:贺自然公示〔2026〕26号发布日期:2026年03月02日

贺州市委党校旧址生活区2栋1单元住宅楼加装电梯工程建筑设计方案批前公示

2026-03-02 09:45     来源:贺州市自然资源局
收藏 我要收藏 公共资源调用站点 文章分享
分享 微信
头条
微博 空间 qq
【字体: 打印

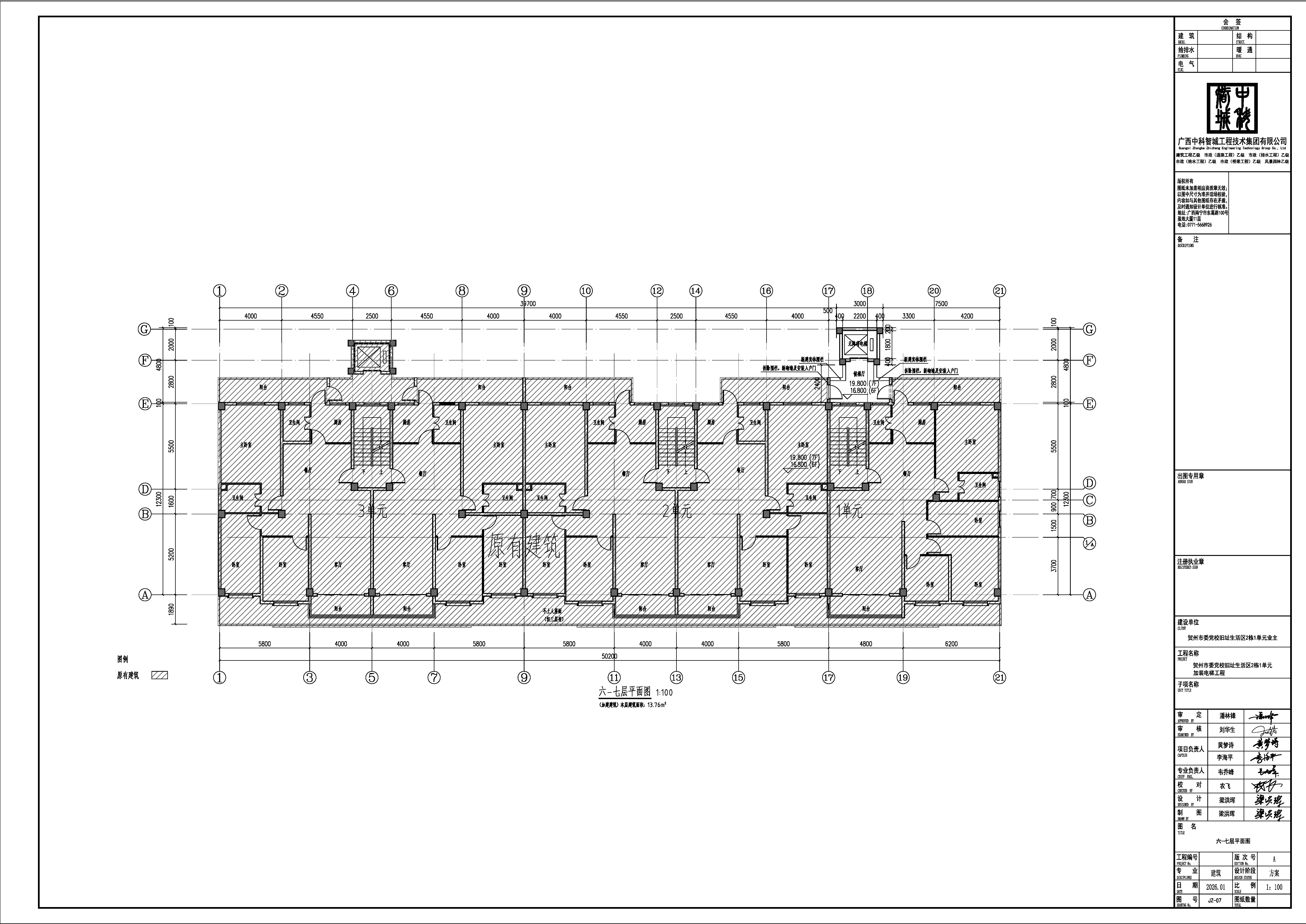
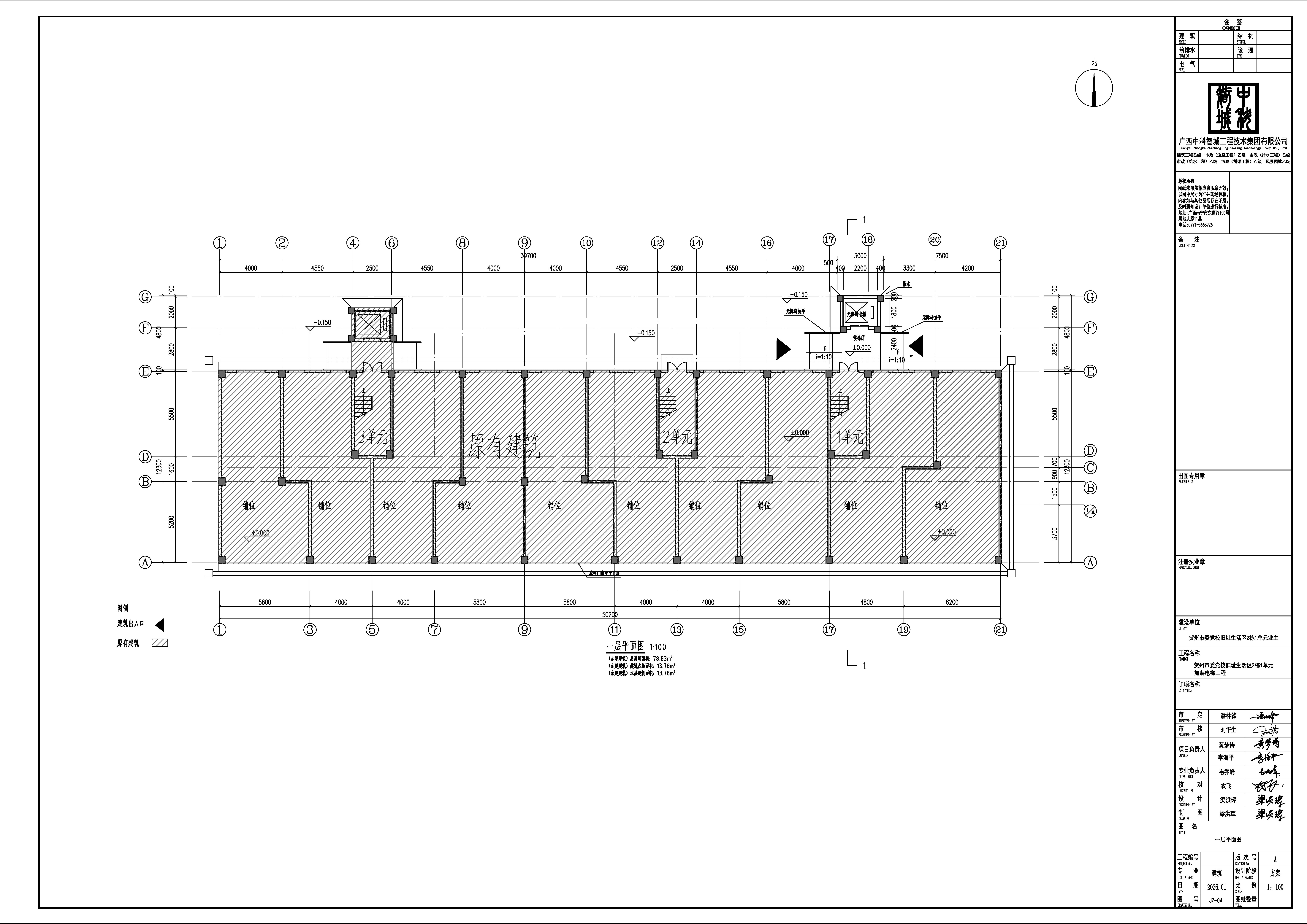
贺州市委党校旧址生活区2栋1单元住户根据实际使用需求需加装电梯一部。经审核,该加装电梯建筑设计方案各项指标符合相关规范要求。现将该加装电梯予以征求意见公示(从2026年3月2日至2026年3月8日;公示地址:贺州市自然资源局网站http://hz.dnr.gxzf.gov.cn/、项目地址)。如相关利害人对该方案有异议和建议,请于公示期内将书面意见(利害关系人应当提供与公示事项有利害关系的事实和证明,反馈意见应署真实姓名和联系地址、有效联系方式)送达或发邮件到贺州市自然资源局城市建设科(地址:贺州市贺州大道403号,电子邮箱:hzcsjsk@gxj.gxhz.gov.cn,电话:0774-5685433)。如反馈意见信息不准确或不完整无法及时进一步核对相关情况的,将视为无效意见。

附件:1.区位图

      2.加装电梯效果图

      3.黑白总平面图

          4.加装电梯平、立、剖面图

贺州市自然资源局        

2026年3月2日        


关联文件: