简体版| 繁体版
支持IPv6
无障碍
当前位置:首页 > 城市规划 > 项目规划公示
发文单位:贺州市自然资源局成文日期:2026年02月09日
标  题:贺州市业联粉体有限公司年产35万吨高端碳酸钙、5万吨可降解母粒、5万吨环保涂料项目规划及建筑设计方案征求意见公示
发文字号:贺自然公示〔2026〕24号发布日期:2026年02月09日

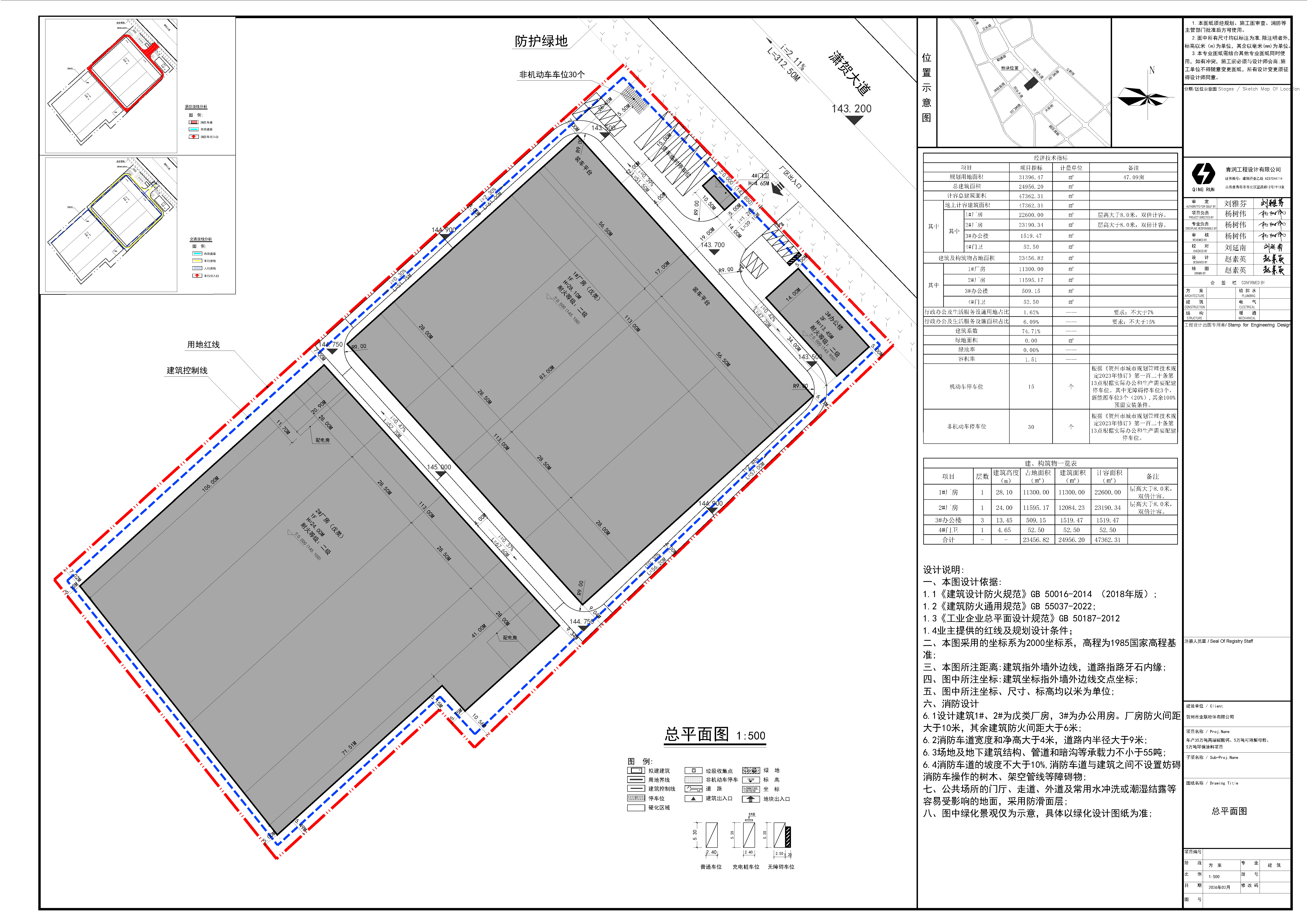
贺州市业联粉体有限公司年产35万吨高端碳酸钙、5万吨可降解母粒、5万吨环保涂料项目规划及建筑设计方案征求意见公示

2026-02-09 09:58     来源:贺州市自然资源局
收藏 我要收藏 公共资源调用站点 文章分享
分享 微信
头条
微博 空间 qq
【字体: 打印

贺州市业联粉体有限公司向我局申请批准《年产35万吨高端碳酸钙、5万吨可降解母粒、5万吨环保涂料项目规划及建筑设计方案》。该项目位于贺州市潇贺大道与对门岭东路交汇处西北侧A地块。经核,项目各项指标符合规划设计条件及相关规范要求。根据住建部《关于城乡规划公开公示的规定》(建规〔2013〕166号),现将该方案予以征求意见公示(从2026年2月9日至2026年2月15日;公示地址:贺州市自然资源局网站http://hz.dnr.gxzf.gov.cn/、贺州日报)。如相关利害人对该方案有异议和建议,请于公示期内将书面意见(利害关系人应当提供与公示事项有利害关系的事实和证明,反馈意见应署真实姓名和联系地址、有效联系方式)送达或发邮件到贺州市自然资源局城市建设科,地址:贺州市贺州大道403号,电子邮箱:hzcsjsk@gxj.gxhz.gov.cn,电话:5685433。如反馈意见信息不准确或不完整无法及时进一步核对相关情况的,将视为无效意见。

附件:1.区位分析图

          2.彩色总平面图

          3.黑白总平面图

          4.实景鸟瞰图

          5.厂房人视效果图

6.办公楼人视效果图

贺州市自然资源局        

2026年2月9日        


关联文件: