简体版| 繁体版
支持IPv6
无障碍
当前位置:首页 > 城市规划 > 项目规划公示
发文单位:贺州市自然资源局成文日期:2026年01月04日
标  题:八步区装饰新材料生产项目规划及建筑设计调整方案批前公示
发文字号:贺自然公示〔2026〕3号发布日期:2026年01月04日

八步区装饰新材料生产项目规划及建筑设计调整方案批前公示

2026-01-04 10:05     来源:贺州市自然资源局
收藏 我要收藏 公共资源调用站点 文章分享
分享 微信
头条
微博 空间 qq
【字体: 打印

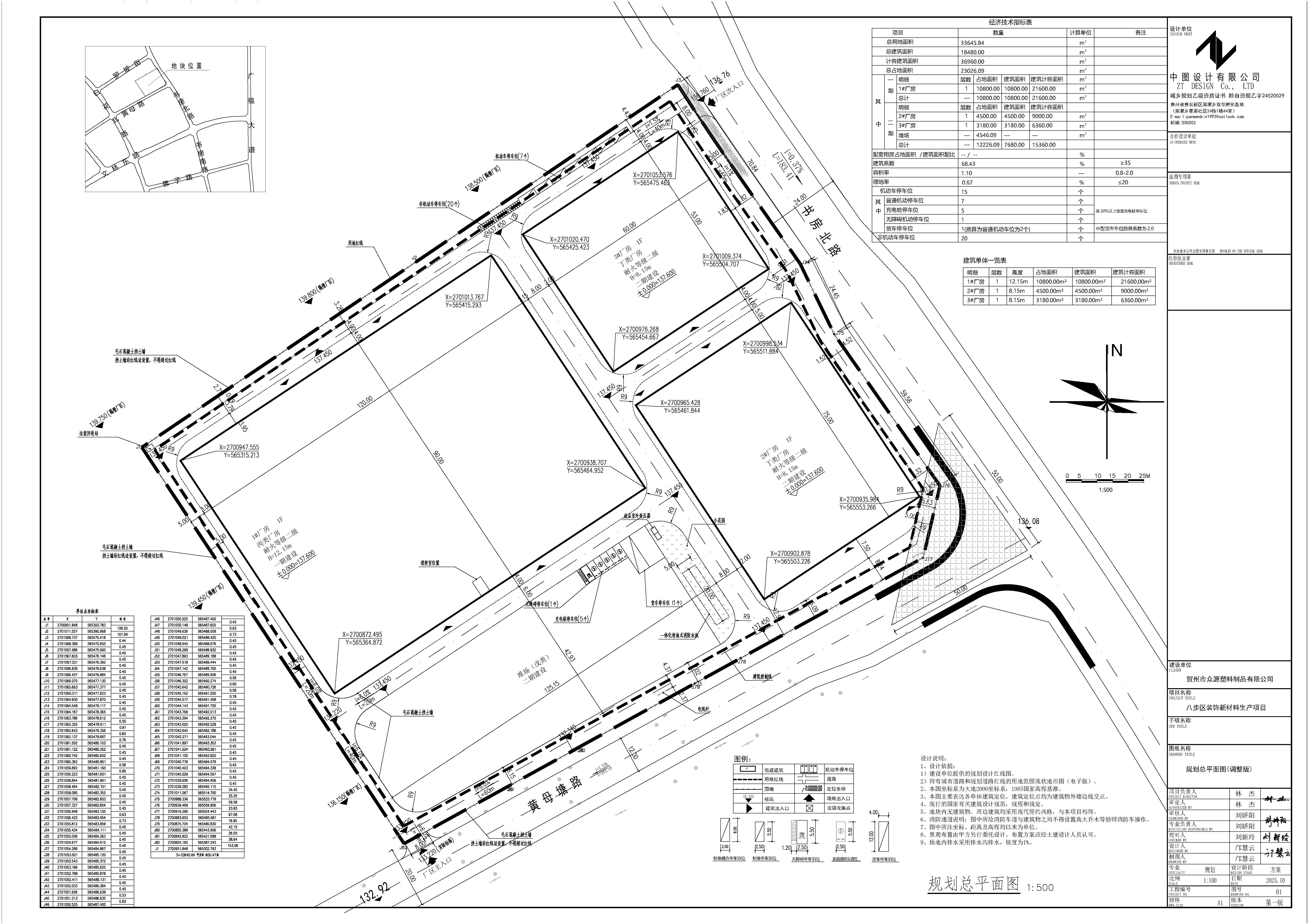
八步区装饰新材料生产项目位于八步区书房北路与黄母路交汇处西北侧A地块。因企业生产设备变更贺州市众源塑料制品有限公司根据实际建设需求向我局申请对项目的总平面布局进行调整,即:一是取消4#厂房及综合楼;二是原堆场位置由西北面调整到地块西南面;三是扩大1#厂房的规模,结构形式由框架结构改为钢结构厂房;四是相应调整总平面的出入口位置、绿地布局等内容。该调整方案经我局2025年第13次局务会议审议通过,且方案各项指标均符合规划设计条件及相关规范要求。根据《关于城乡规划公开公示的规定》(建规〔2013〕166号)的规定,现将该方案予以批前公示(从2026年1月5日至2026年1月11日;公示地址:贺州市自然资源局网站http://hz.dnr.gxzf.gov.cn/、贺州日报、项目所在地)。如相关利害人对该方案有异议和建议,请于公示期内将书面意见(利害关系人应当提供与公示事项有利害关系的事实和证明,反馈意见应署真实姓名和联系地址、有效联系方式)送达或发邮件到贺州市自然资源局城市建设科,地址:贺州市贺州大道403号,邮箱:hzcsjsk@gxj.gxhz.gov.cn,电话:5685433。如反馈意见信息不准确或不完整无法及时进一步核对相关情况的,将视为无效意见。

附件:1.区位图

           2.总平面调整对比图

           3.实景鸟瞰对比图

           4.调整后彩色总平图

           5.调整后实景鸟瞰图

贺州市自然资源局

2026年1月4日



关联文件: