简体版| 繁体版
支持IPv6
无障碍
当前位置:首页 > 城市规划 > 项目规划公示
发文单位:贺州市自然资源局成文日期:2025年10月17日
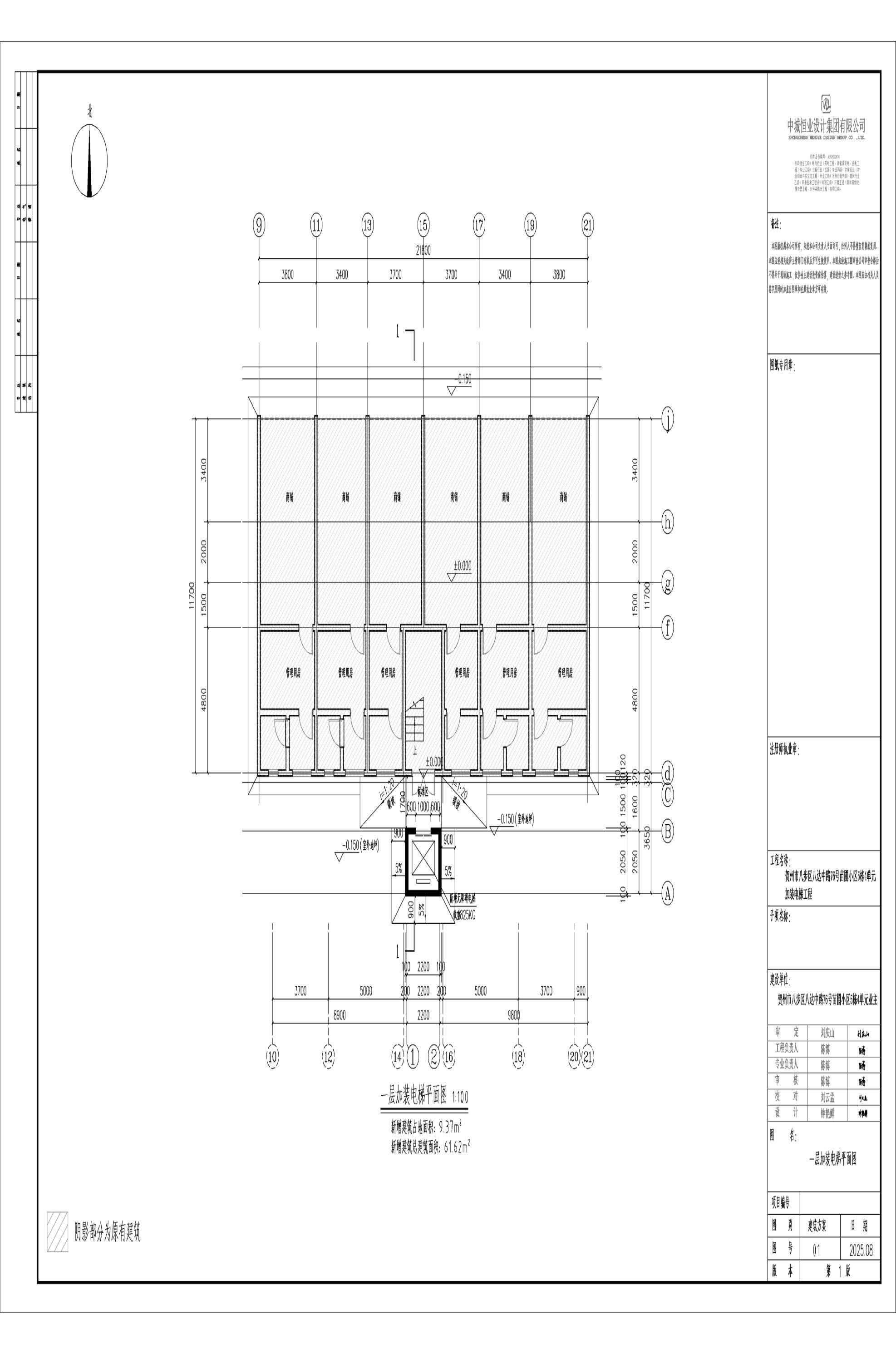
标  题:贺州市八步区八达中路76号苗圃小区 5栋4单元加装电梯工程建筑设计方案征求意见公示
发文字号:贺自然公示〔2025〕214号发布日期:2025年10月17日

贺州市八步区八达中路76号苗圃小区 5栋4单元加装电梯工程建筑设计方案征求意见公示

2025-10-17 09:30     来源:贺州市自然资源局
收藏 我要收藏 公共资源调用站点 文章分享
分享 微信
头条
微博 空间 qq
【字体: 打印

贺州市八步区八达中路76号5栋4单元住宅楼住户根据实际使用需求申请加装电梯一部。经审核,该加装电梯建筑设计方案各项指标符合相关规范要求。根据《关于城乡规划公开公示的规定》(建规〔2013〕166号)的规定,现将该加装电梯予以征求意见公示(从2025年10月20日至2025年10月26日;公示地址:贺州市自然资源局网站http://hz.dnr.gxzf.gov.cn/、项目所在地)。如相关利害人对该方案有异议和建议,请于公示期内将书面意见(利害关系人应当提供与公示事项有利害关系的事实和证明,反馈意见应署真实姓名和联系地址、有效联系方式)送达或发邮件到贺州市自然资源局城市建设科(地址:贺州市贺州大道403号,电子邮箱:hzcsjsk@gxj.gxhz.gov.cn,电话:5685433)。如反馈意见信息不准确或不完整无法及时进一步核对相关情况的,将视为无效意见。

附件:1.区位图

      2.加装电梯效果图

      3.黑白总平面图

      4.加装电梯平、立、剖面图

贺州市自然资源局 

2025年10月17日


关联文件: