简体版| 繁体版
支持IPv6
无障碍
当前位置:首页 > 城市规划 > 项目规划公示
发文单位:贺州市自然资源局成文日期:2025年10月10日
标  题:贺州市八步区人民检察院办案和专业技术 综合楼加装电梯项目规划及建筑设计 方案征求意见公示
发文字号:贺自然公示〔2025〕207号发布日期:2025年10月10日

贺州市八步区人民检察院办案和专业技术 综合楼加装电梯项目规划及建筑设计 方案征求意见公示

2025-10-10 10:30     来源:贺州市自然资源局
分享 微信
头条
微博 空间 qq
【字体: 打印

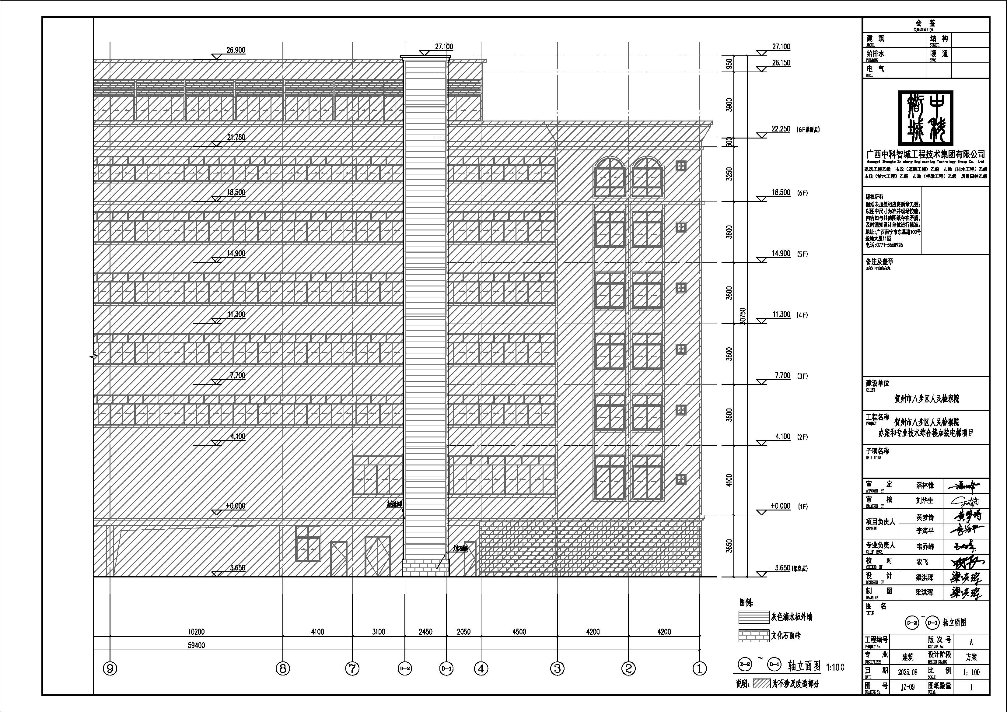
    贺州市八步区人民检察院因提升工作效率需要向我局申请拟在办案和专业技术综合楼加装电梯一部。经审核,该加装电梯建筑设计方案各项指标符合相关规范要求。现将该加装电梯予以征求意见公示(从2025年10月9日至2025年10月15日;公示地址:贺州市自然资源局网站http://hz.dnr.gxzf.gov.cn/、项目地址)。如相关利害人对该方案有异议和建议,请于公示期内将书面意见(利害关系人应当提供与公示事项有利害关系的事实和证明,反馈意见应署真实姓名和联系地址、有效联系方式)送达或发邮件到贺州市自然资源局城市建设科(地址:贺州市贺州大道403号,电子邮箱:hzcsjsk@gxj.gxhz.gov.cn,电话:5685433)。如反馈意见信息不准确或不完整无法及时进一步核对相关情况的,将视为无效意见。

    附件:1.区位图

          2.加装电梯总平面示意图

          3.加装电梯前后效果对比图

          4.加装电梯立面图

贺州市自然资源局 

                                                     2025年10月9日


关联文件: